Alüsan Alüminyum Sanayi ve Tic. Aş.

Get a Free Quote
Kapat

Agraffe System

Agraffe System

Agraffe System

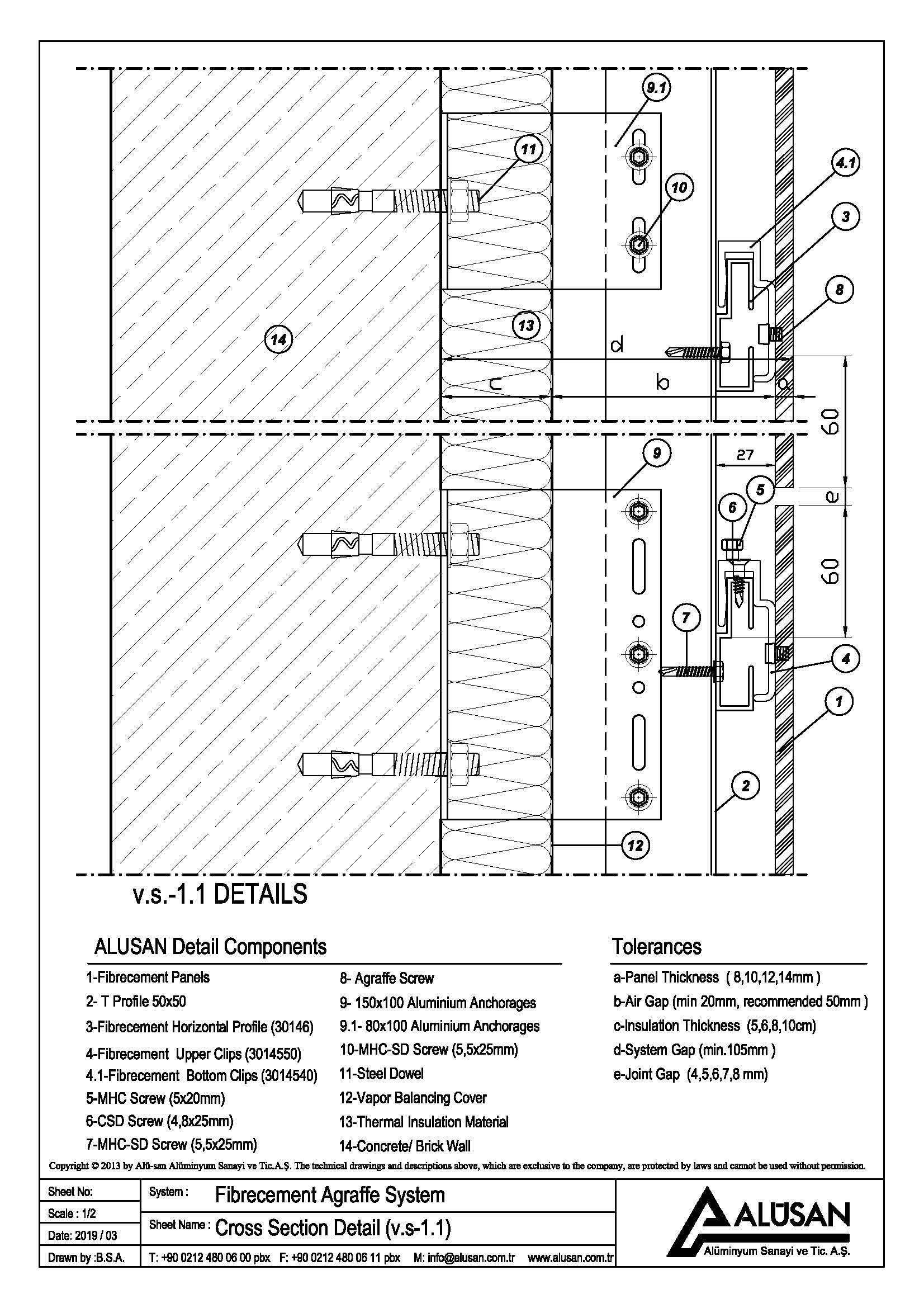
It is hanged on the building facade as per related Project on the load-bearing base construction composed of aluminum anchorages and aluminum vertical T profiles using Fibercement plates and agraffe clips fixed at 4 points on the rear sides. Joints are open in this system.

Get a Free Quote

You can contact us by using the form below for special solutions for your needs.