SYSTEMS
Ceramic Facade
Thin Big Size Tile Slab
HPL FACADE
Fibrecement Cladding
Terra Cotta Facade
Frontek Facade
Thermowood Facade
4 Clıp-On System
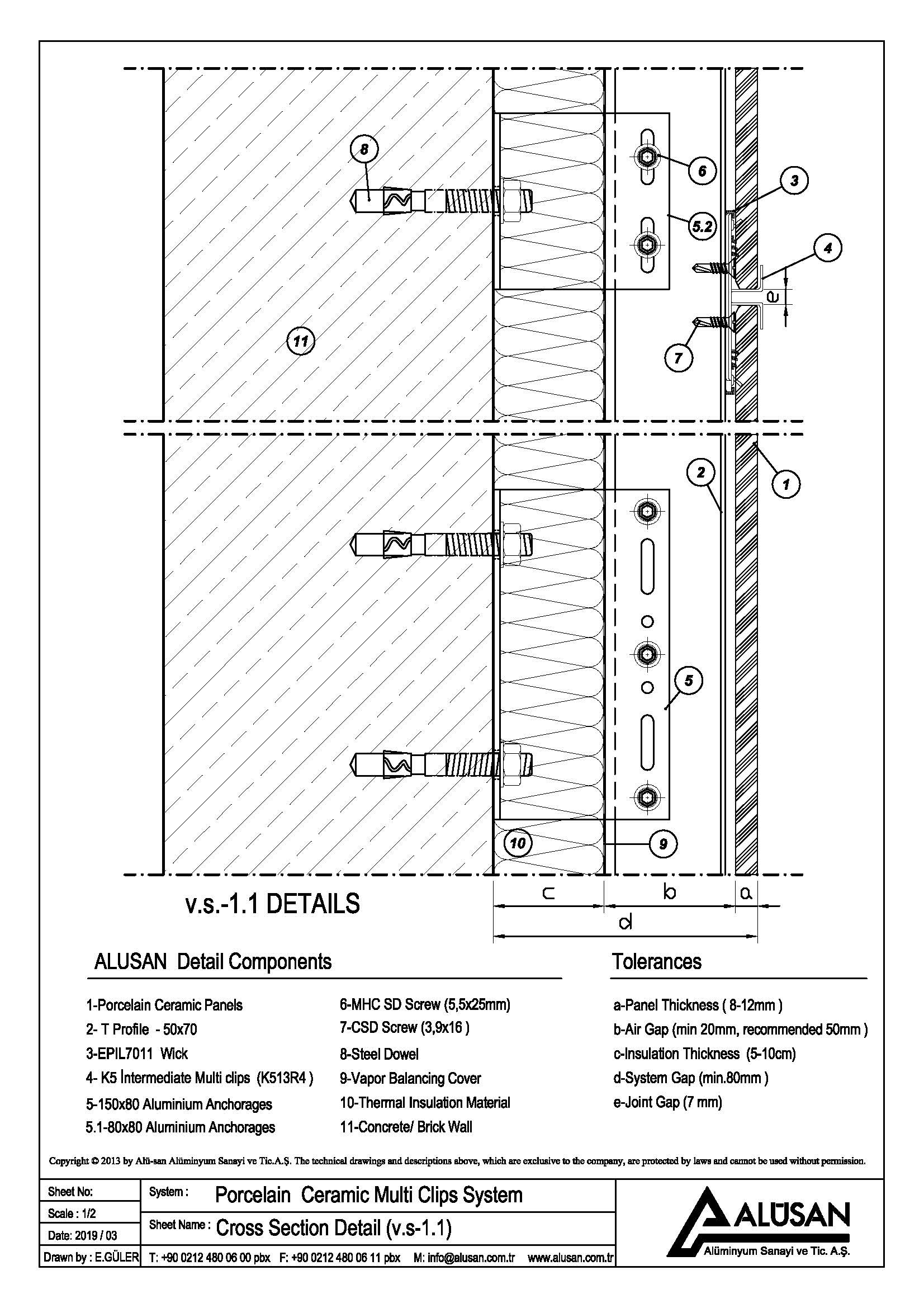
Aluminum anchors and vertical bearing T profiles are formed on the sub-construction of the ceramic tiles depending on the location of 4 or 2 with intermediate and lower stainless clips are fixed to the carrier profiles. The epdm wicks in the clips prevent direct contact of the ceramic to the profile and ensure a good fit in the clips. Stainless Clips can be painted in Ral Color. Economical application is a fast and safe system.
