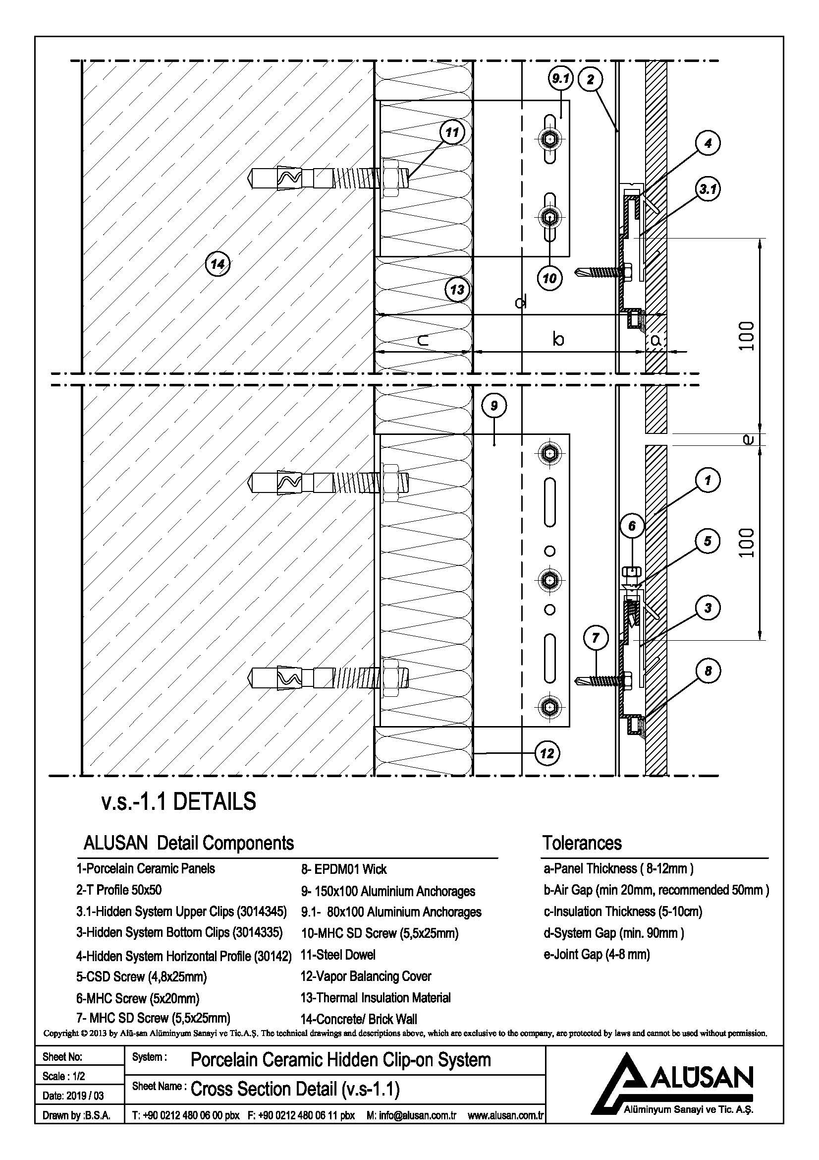
Hidden-Channel System
In this system the load-bearing base construction composed of aluminum anchorages and aluminum vertical T profiles is mounted on the lower construction facade. Ceramics are mounted on the horizontal load- bearing construction by the help of special type aluminum hidden clips that are fixed to the dovetail channels grooved at four points on the rear face of the ceramics. It is typically economic to apply with materials at dimensions of 60x60, 60xl20, 50xl00 em.
