SYSTEMS
Ceramic Facade
Thin Big Size Tile Slab
HPL FACADE
Fibrecement Cladding
Terra Cotta Facade
Frontek Facade
Thermowood Facade
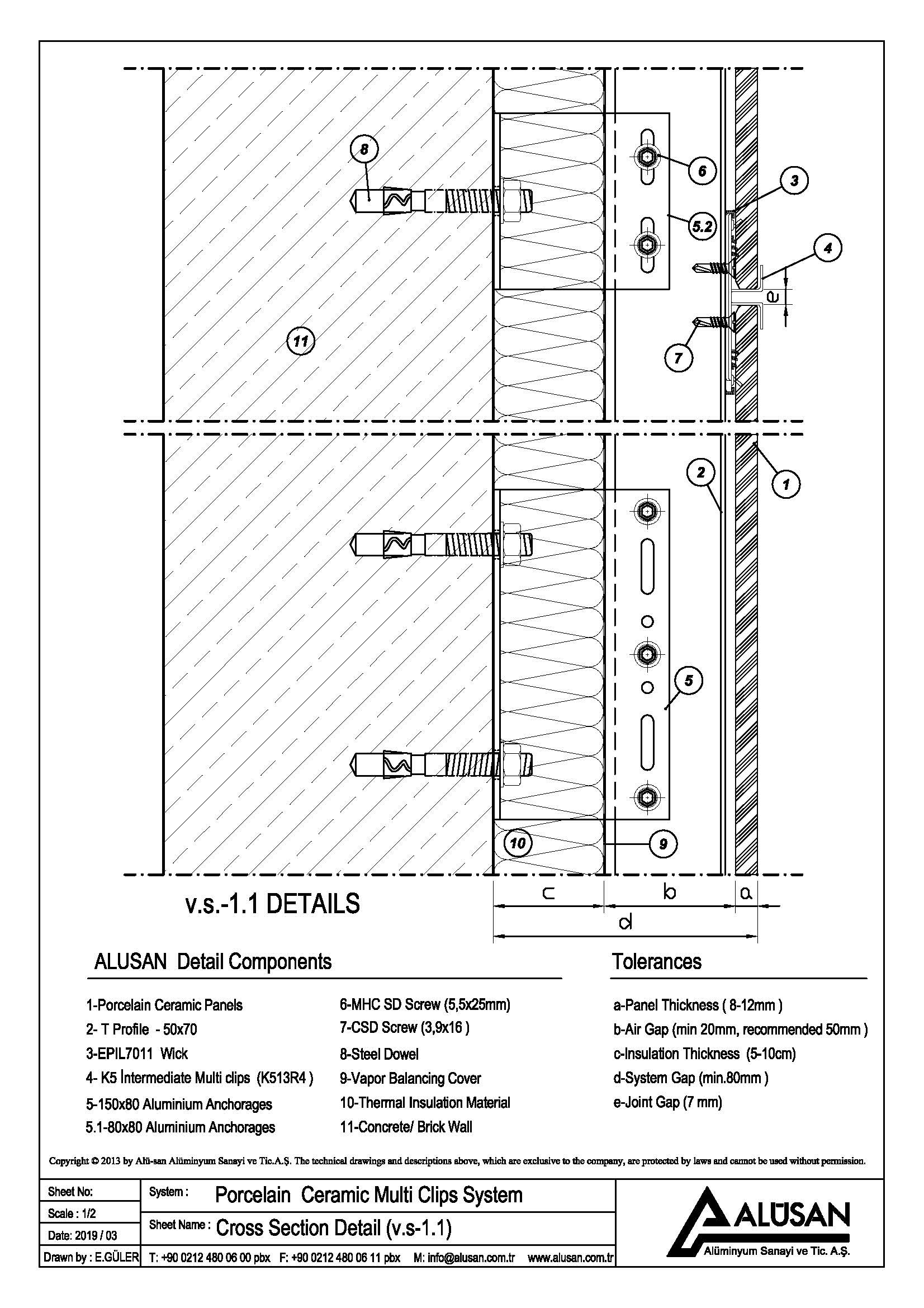
Horizontal Suspended System
In the horizontal suspension system, aluminum clips are fixed on the sub-construction formed by aluminum anchors and Vertical Carrier T Profiles. Ceramic Plates are bonded to the façade using upper, intermediate and lower horizontal profiles. And the coating process is finished by hanging on the carrier clips. The biggest advantage of this system is that vertical joints can be offset and the joint width is 2mm.
