Alüsan Alüminyum Sanayi ve Tic. Aş.

Get a Free Quote
Kapat

Hidden-Clips System

Hidden-Clips System

Hidden-Clips System

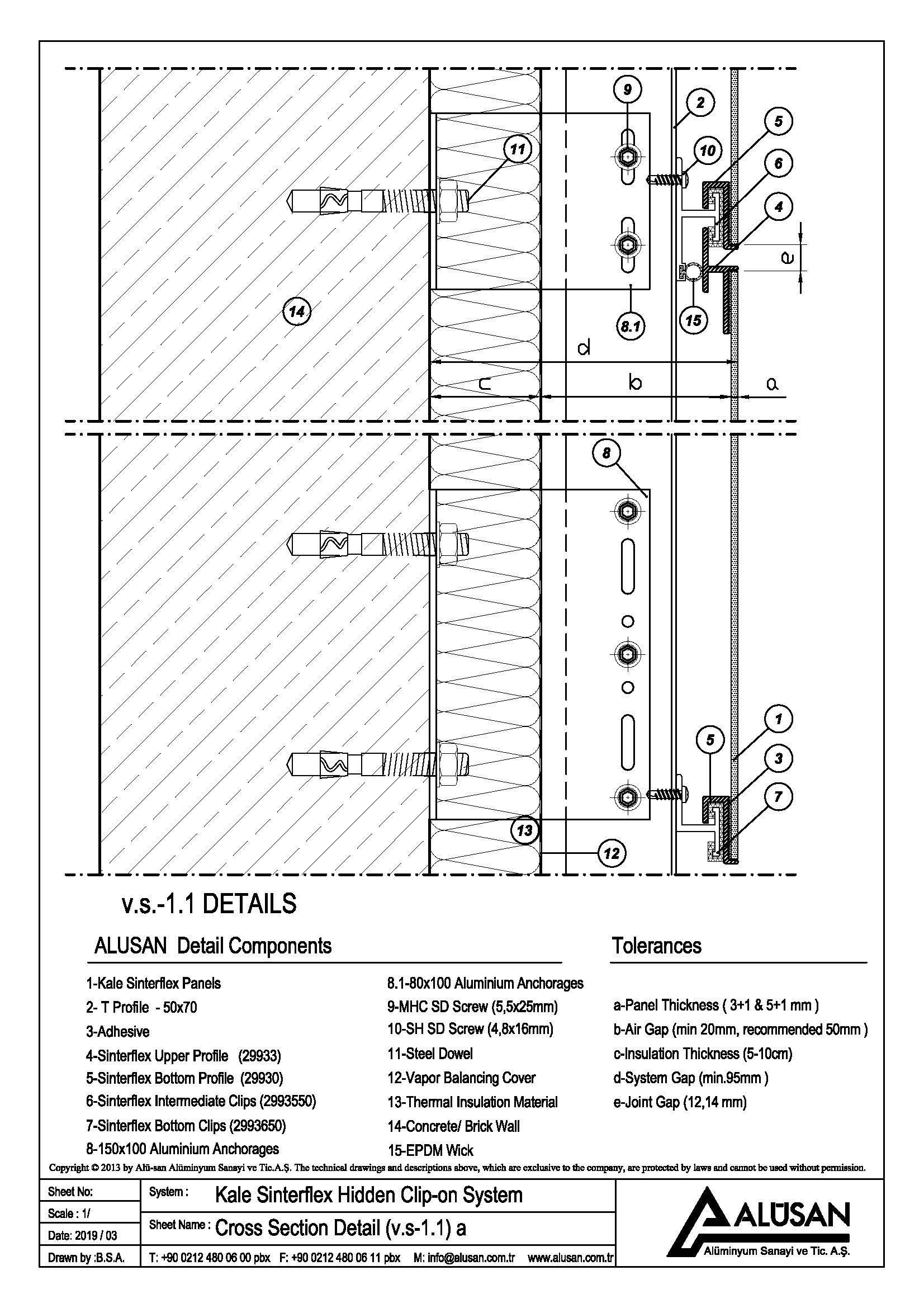
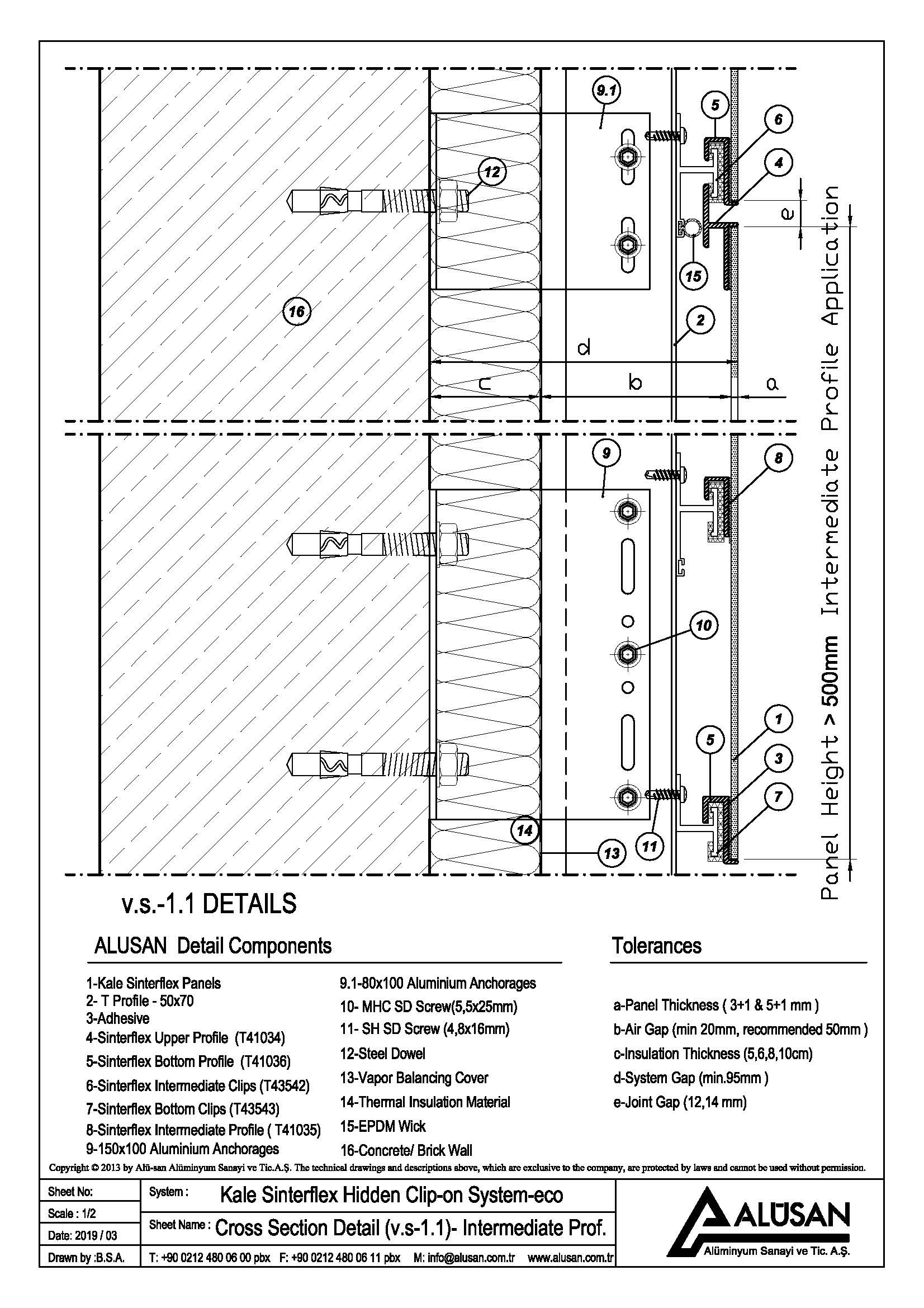
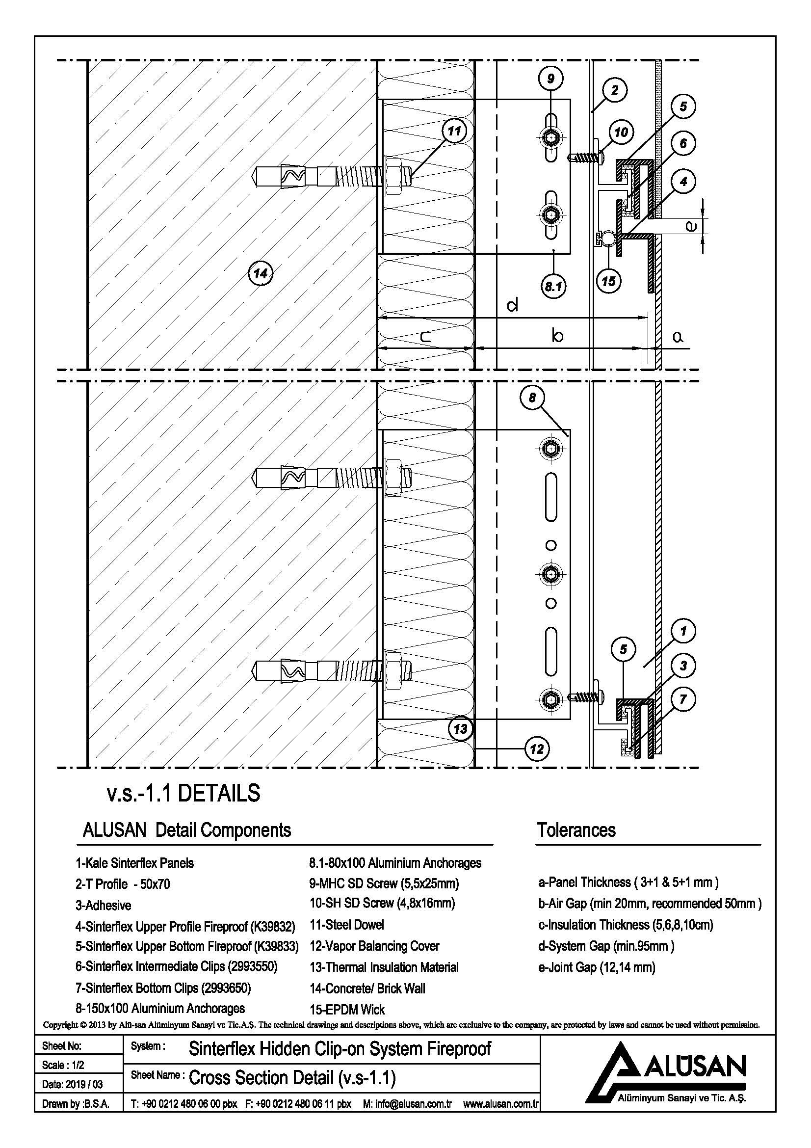
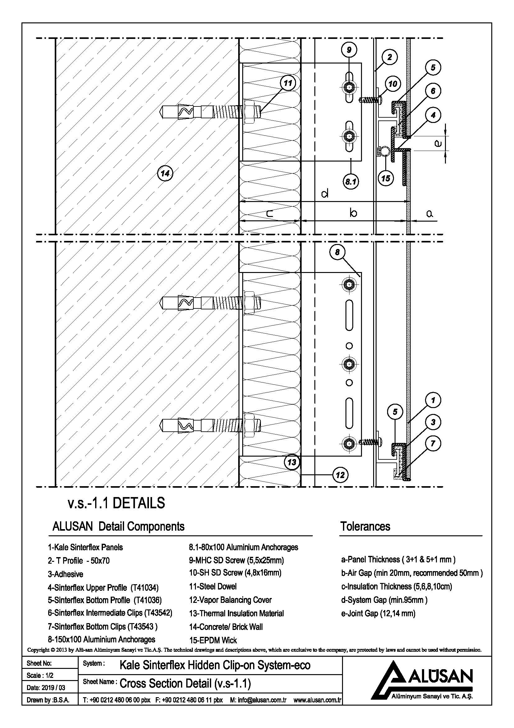
In this system the load-bearing base construction composed of aluminum brackets and aluminum vertical T profiles is mounted on the lower construction facade. Horizontal load- bearing aluminum hanger profiles with special cross­ section are adhered onto upper and lower parts of the rear surface of the Sinterflex panels by the help of polymer adhesive. The installation is completed by mounting Sinterflex Panels to the load- bearing construction by means of special Aluminum Hidden Clips and EPDM wicks.

Get a Free Quote

You can contact us by using the form below for special solutions for your needs.